Сухой трансформатор ТСЛ 3150/10/0,4/IP00/Dy-h11/AL с литой изоляцией
|
Характеристики трансформатора ТСЛ/3150/10/0.4/D/Yн-11/IP00/Al с литой изоляцией:
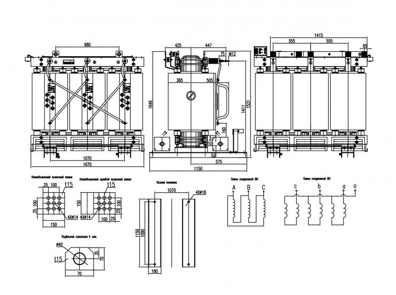
•Тип: ТСЛ (трехфазный, сухого типа с литой изоляцией). •Концепция конструкции: Стержневой. •Номинальная мощность, кВа: 3150. •Номинальное напряжение на стороне ВН, кВ: 10. •Номинальное напряжение на стороне НН, кВ: 0.4. •Материал обмотки: Алюминий . •Напряжение короткого замыкания Uкз (%) ± 10%: Стандартное. •Частота питающей сети, Гц: 50. •Степень защиты кожуха (корпус): IP00. •Класс нагревостойкости изоляции: F (155°C). •Переключение без возбуждения (ПБВ), %: ±2×2,5. •Схема и группа соединения обмоток: D/Yн-11 (треугольник-звезда). •Уровень шума дB (A): Стандартный. •Охлаждение: Естественное С (AN/AF). •Высота установки над уровнем моря, м: До 1000. •Ток lхх, % ±30%: 0,4. •Потери холостого хода (120°C) ± 15%, Вт: 4267. •Потери короткого замыкания (120°C) ± 10%, Вт: 26677. •Габариты трансформатора, мм: 1670*1300*1531. •Колея колес (или опор), мм: 1070*1240. •Вес трансформатора без кожуха ± 10%, кг: 4780. •Климатическое исполнение: УЗ / УХЛ3. •Тип вывода ВН; НН: Шина. * - Точные размеры, а также подлежащие измерению фактические параметры и вес указываются в паспорте трансформатора. Типовая комплектация трансформатора 3150 квА с литой изоляцией: •Трансформатор; •Транспортные колёса — ролики; •Паспорт на трансформатор (с заключением ОТК); •Сертификат сейсмостойкости (до 9 баллов); •Сертификат соответствия ГОСТ Р12.1.004−91 «Система стандартов безопасности труда. Пожарная безопасность»; •Цифровой блок температурного контроля BWDK с терморегулятором и датчиком температуры обмоток (3−4 шт) выполняющий роль шкафа теплового контроля; •Вентиляторы 6 шт. •Комплект эксплуатационной документации на блок температурного контроля. Гарантийные обязательства: 60 месяцев с момента передачи товара покупателю. Чертеж сухого трансформатора ТСЛ 3150 ква с литой изоляцией прилагается. Купить сухой трансформатор 3150 ква с литой изоляцией у производителя Востокэнерготранс. Срок изготовления товара «на заказ» от 14 до 60 календарных дней. Оплата 60% предоплата. 40% по готовности партии к отгрузке.) Доставка товара до покупателя возможна как силами поставщика (за отдельную плату), так и силами покупателя (самовывоз).
|
|||
|
цена за шт.:
3050000 руб.
Сообщить о нарушении
Поставка:
Товар в наличии
Поставщик:
Востокэнерготранс Россия, Татарстан, Казань
Тип:
продам
Дата публикации:
13 февр. 2026 - 16:19
Просмотров:
в Апреле [0], всего [0] Купить Сухой трансформатор ТСЛ 3150/10/0,4/IP00/Dy-h11/AL с литой изоляцией вы сможете по адресу: г. Казань, ул. Тази Гиззата д.6/31,пом 6
|
Не нашли нужного предложения?
Оставьте заявку для всех участников торговой площадки.
24000 организации, Ваша контактная информация доступна только зарегистрированным пользователям.
Оставьте заявку для всех участников торговой площадки.
24000 организации, Ваша контактная информация доступна только зарегистрированным пользователям.

