Сухой трансформатор ТСЛ 2000/10/0,4/IP00/Dy-h11/AL с литой изоляцией
|
Работа напрямую с производителем Востокэнерготранс вы покупаете надежный и высокотехнологичный товар, а так же значительно экономите на покупке.
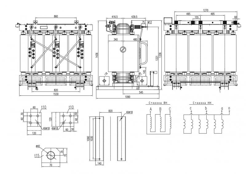
Характеристики трансформатора сухого 2000 квА с литой изоляцией Производитель: Востокэнерготранс; Тип: Силовой трансформатор; Вид: Трехфазные; Концепция конструкции: Стержневые; Охлаждение: Воздушное; Номинальная мощность: 2000 кВа; Номинальное высшее напряжение: 10 кВ ВН; Номинальное низшее напряжение: 0.4 кВ НН; Степень защиты кожуха (корпус): IP00 без кожуха; Схема и группа соединения обмоток: D/Yн-11 (треугольник / звезда); Расположение вводов трансформатора: Верхнее; Материал обмотки: Алюминий; Вид трансформатора: Трехфазный; Уровень шума дB (A): Менее 70; Охлаждение: Естественное С (AN/AF); Высота установки над уровнем моря, м: До 1000; Потери холостого хода (120°C) ± 15%, Вт: 3050 ; Потери короткого замыкания (120°C) ± 10%, Вт: 14450; Габариты трансформатора, мм: 1530*1090*1336; Колея колес (или опор), мм: 820*1030; Вес трансформатора без кожуха ± 10%, кг: 3510; Типовая комплектация трансформаторов ТСЛ 2000 ква 10/0,4: — Вентиляторы; — Цифровой блок температурного контроля BWDK с терморегулятором и датчиком температуры обмоток (3-4 шт) выполняющий роль шкафа тепловой защиты. — Трансформатор; — Транспортные колёса — ролики; — Паспорт на трансформатор; — Сертификат сейсмостойкости (до 9 баллов) — Сертификат соответствия ГОСТ Р12.1.004-91 «Система стандартов безопасности труда. Пожарная безопасность». — Протокол испытаний независимой лаборатории на соответствие товара заявленным характеристикам. Гарантийные обязательства 60 месяцев с момента передачи товара покупателю. Чертеж сухого трансформатора ТСЛ 2000 ква с литой изоляцией прилагается. Купить сухой трансформатор 2000 ква с литой изоляцией у производителя Востокэнерготранс. Срок изготовления товара "на заказ" от 14 до 60 календарных дней. Оплата 60% предоплата. 40% по готовности партии к отгрузке. ) Доставка товара до покупателя возможна как силами поставщика (за отдельную плату), так и силами покупателя (самовывоз).
|
|||
|
цена за шт.:
1900000 руб.
Сообщить о нарушении
Поставка:
Товар в наличии
Поставщик:
Востокэнерготранс Россия, Татарстан, Казань
Тип:
продам
Дата публикации:
14 окт. 2025 - 18:23
Просмотров:
в Декабре [0], всего [0] Купить Сухой трансформатор ТСЛ 2000/10/0,4/IP00/Dy-h11/AL с литой изоляцией вы сможете по адресу: г. Казань, ул. Тази Гиззата д.6/31,пом 6
|
Не нашли нужного предложения?
Оставьте заявку для всех участников торговой площадки.
24000 организации, Ваша контактная информация доступна только зарегистрированным пользователям.
Оставьте заявку для всех участников торговой площадки.
24000 организации, Ваша контактная информация доступна только зарегистрированным пользователям.

