Сухой трансформатор ТСЛ/1250/10/0.4/Dy-h11/IP00/AL c литой изоляцией
|
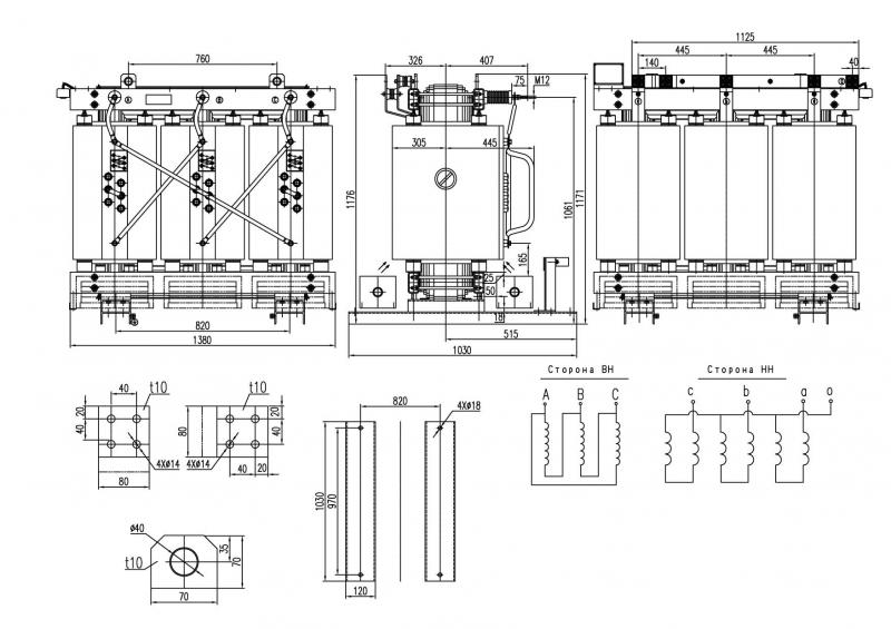
Технические характеристики сухого трансформатора с литой изоляцией ТСЛ/1250/10/0.4/D/Yн-11/IP00/Al
•Тип: ТСЛ (трехфазный, сухого типа , с литой изоляцией) •Концепция конструкции: Стержневой •Номинальная мощность, кВа: 1250 •Номинальное напряжение на стороне ВН, кВ: 10 •Номинальное напряжение на стороне НН, кВ: 0.4 •Материал обмотки: Алюминий •Напряжение короткого замыкания Uкз(%) ± 10%: 6 •Частота питающей сети, Гц: 50 •Степень защиты кожуха (корпус): IP00 •Класс нагревостойкости изоляции: F(155°C) •Переключение без возбуждения (ПБВ), %: ±2х2,5 •Схема и группа соединения обмоток: D/Yн-11 (треугольник-звезда) •Уровень шума дB(A): Менее 70 •Охлаждение: Естественное С (AN/AF) •Высота установки над уровнем моря, м: До 1000 •Потери холостого хода (120°C) ± 15%, Вт: 2090 •Потери короткого замыкания (120°C) ± 10%, Вт: 9690 •Ток lхх, % ±30%: 0,9 •Габариты трансформатора, мм: 1380*1030*1171 •Колея колес (или опор), мм: 820*970 •Вес трансформатора без кожуха ± 10%, кг: 2420 •Климатическое исполнение: УЗ - умеренный климат в закрытых помещениях с вентиляцией •Тип вывода ВН и НН: Шина, либо Кабель •Материал выводов НН: алюминий, либо медь * - Точные размеры, а также подлежащие измерению фактические параметры и вес указываются в паспорте трансформатора. Типовая комплектация: •Трансформатор; •Транспортные колёса - ролики; •Паспорт на трансформатор (с заключением ОТК); •Сертификат сейсмостойкости (до 9 баллов); •Сертификат соответствия ГОСТ Р12.1.004-91 «Система стандартов безопасности труда. Пожарная безопасность». •Цифровой блок температурного контроля BWDK с терморегулятором и датчиком температуры обмоток (3-4шт) выполняющий роль шкафа тепловой защиты. •Вентиляторы 4 шт. •Комплект эксплуатационной документации на блок температурного контроля. Гарантийные обязательства: 60 месяцев с момента передачи товара покупателю. Чертеж сухого трансформатора 1250 ква дан в описании Наличие товара уточняйте у менеджера. Срок изготовления трансформаторов на заказ от 14 до 60 календарных дней.
|
|||
|
цена за шт.:
1350000 руб.
Сообщить о нарушении
Поставка:
Товар в наличии
Поставщик:
Востокэнерготранс Россия, Татарстан, Казань
Тип:
продам
Дата публикации:
14 окт. 2025 - 18:54
Просмотров:
в Декабре [0], всего [0] Купить Сухой трансформатор ТСЛ/1250/10/0.4/Dy-h11/IP00/AL c литой изоляцией вы сможете по адресу: г. Казань, ул. Тази Гиззата д.6/31,пом 6
|
Не нашли нужного предложения?
Оставьте заявку для всех участников торговой площадки.
24000 организации, Ваша контактная информация доступна только зарегистрированным пользователям.
Оставьте заявку для всех участников торговой площадки.
24000 организации, Ваша контактная информация доступна только зарегистрированным пользователям.

