Сухой трансформатор ТСЛ 400/6/0,4/IP00/Dy-h11/Al с литой изоляцией
|
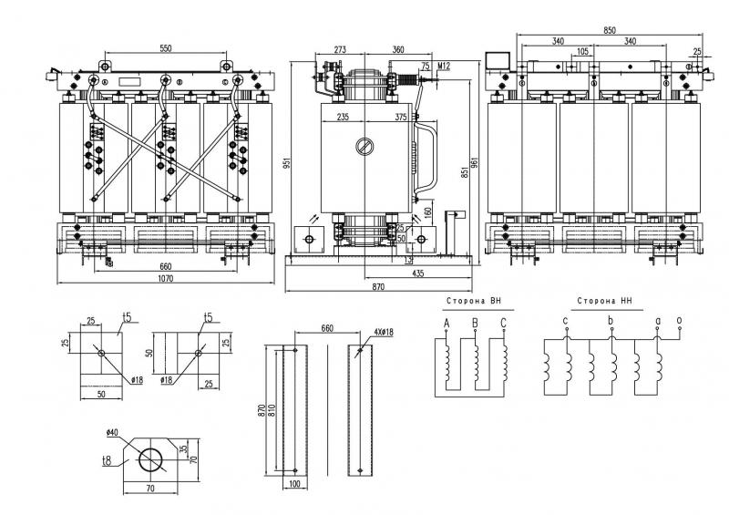
Технические характеристики сухого трансформатора ТСЛ 400/6/0,4/IP00/Dy-h11/Al с литой изоляцией.
• Производитель: Востокэнерготранс • Номинальный ток обмотки (НН): 15 А • Концепция конструкции: Стержневой • Тип: Силовой • Вид: Трехфазный • Тип по назначению: Понижающий • Материал обмотки: Алюминий • Охлаждение: Воздушное AN/AF • Степень защиты кожуха: IP00 ГОСТ 14254-2015 • Схема и группа соединения обмоток: Dy-h11 • Номинальная мощность: 400 кВА • Номинальное высшее напряжение (ВН): 6 кВ • Номинальное низшее напряжение (НН): 0.4 кВ • Напряжение короткого замыкания Uкз ± 10%: 4 % • Класс пожаробезопасности: F1 ГОСТ Р 54827-2011 • Класс нагревостойкости изоляции: F (155°C) ГОСТ 12.1.044-91 • Климатическое исполнение: У3 или УХЛ3 ГОСТ 15150-69 • Класс стойкости к воздействиям окружающей среды: Е2 ГОСТ 52719-2007 • Ток lхх, ±30%:1.1 % • Уровень шума: 50 дВ(А) • Частота питающей сети: 50 Гц • Переключение ответвлений (ПБВ) -+2x2,5: =5 % • Потери холостого хода (120°C) ± 15%: 980 Вт • Потери короткого замыкания 120°C ± 10%: 3990 Вт • Колея колес: 660*810 мм • Номинальный ток обмотки (ВН): 38 А • Номинальный ток обмотки (НН): 577 А • Габариты трансформатора: 1070*870*961 мм • Вес трансформатора без кожуха: 1140 кг • Габариты кожуха: 1450*1150*1200 мм • Вес трансформатора в кожухе:1240 кг • Страна: Россия Типовая комплектация трансформатора ТСЛ 400/6/0,4/IP00/Dy-h11/Al • Трансформатор ТСЛ 400/6/0,4/IP00/Dy-h11/Al. • Транспортные колёса - ролики. • Вентиляторы 2-6 шт. Русифицированный термоконтроллер BWDK и датчики температуры на катушки (3 шт). На заказ могут быть установлены 4 датчика ( 3 шт – на катушки + 1 шт. - на магнитопровод). При температуре обмоток +- 100°C температурный блок включает вентиляторы. При достижении температуры обмоток +- 130°C блок цифрового контроля подает звуковой сигнал. А при достижении 150 °C блок цифрового контроля отключает трансформатор во избежание перегрева и его выхода из строя. В результате охлаждение трансформатора соответствует типу охлаждения AN/AF. Также имеется возможность ручной установки порогов температуры. • Паспорт на трансформатор (с заключением ОТК). • Руководство пользователя трансформатором. • Руководство пользователя термоконтроллера. Гарантийные обязательства 60 месяцев с момента подключения. При необходимости трансформаторы комплектуются виброопорами.
|
|||
|
цена за шт.:
650000 руб.
Сообщить о нарушении
Поставка:
Товар в наличии
Поставщик:
Востокэнерготранс Россия, Татарстан, Казань
Тип:
продам
Дата публикации:
15 окт. 2025 - 09:52
Просмотров:
в Декабре [0], всего [0] Купить Сухой трансформатор ТСЛ 400/6/0,4/IP00/Dy-h11/Al с литой изоляцией вы сможете по адресу: г. Казань, ул. Тази Гиззата д.6/31,пом 6
|
Не нашли нужного предложения?
Оставьте заявку для всех участников торговой площадки.
24000 организации, Ваша контактная информация доступна только зарегистрированным пользователям.
Оставьте заявку для всех участников торговой площадки.
24000 организации, Ваша контактная информация доступна только зарегистрированным пользователям.

