Сухой трансформатор ТСЛ/630/10/0.4/D/Yн-11/IP00/Al с литой изоляцией в Казани
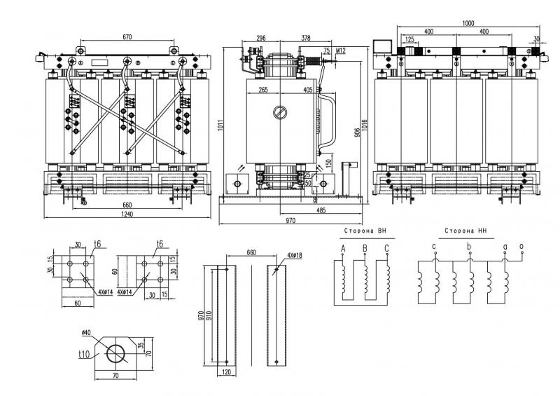
Сухой трансформатор ТСЛ/630/10/0.4/D/Yн-11/IP00/Al с литой изоляциейТехнические характеристики трансформатора сухого типа 630 квА с литой изоляцией:• Тип: ТСЛ (трехфазный, сухого типа с литой изоляцией); • Концепция конструкции: Стержневой; • Номинальная мощность, кВа: 630; • Номинальное напряжение на стороне ВН, кВ: 10; • Номинальное напряжение на стороне НН, кВ: 0.4; • Материал обмотки: Алюминий; • Напряжение короткого замыкания Uкз (%) ± 10%: 6; • Частота питающей сети, Гц: 50; • Степень защиты кожуха (корпус): IP00; • Класс нагревостойкости изоляции: F (155°C); • Переключение без возбуждения (ПБВ), %: ±2×2,5; • Схема и группа соединения обмоток: DYн-11; • Уровень шума дB (A): Менее 70; • Охлаждение: Естественное AN/AF; • Высота установки над уровнем моря, м: до 1000; • Потери холостого хода 120°C ± 15%, Вт: 1300; • Потери короткого замыкания 120°C ± 10%, Вт: 5960; • Габариты трансформатора, мм: 1240*970*1016; • Колея колес (или опор), мм: 660*910; • Вес трансформатора без кожуха ± 10%, кг: 1475; • Климатическое исполнение: УЗ или УХЛ3; • Тип вывода ВН, НН: Шина. * — Точные размеры, а также подлежащие измерению фактические параметры и вес указываются в паспорте трансформатора. Типовая комплектация сухого трансформатора 630 кВА 10 0.4: • Вентиляторы; • Трансформатор; • Транспортные колёса — ролики; • Паспорт на трансформатор (с данными протокола испытаний независимой лаборатории); Сертификат сейсмостойкости (до 9 баллов); Сертификат соответствия ГОСТ Р12.1.004-91 «Система стандартов безопасности труда. Пожарная безопасность»; • Цифровой блок температурного контроля BWDK с терморегулятором и датчиком температуры обмоток (3 -4шт) выполняющий роль шкафа тепловой защиты; • Комплект эксплуатационной документации на блок температурного контроля. Гарантийные обязательства: 60 месяцев с момента передачи товара покупателю. Чертеж сухого трансформатора ТСЛ 630 ква с литой изоляцией прилагается. ![]() Купить сухой трансформатор 630 ква с литой изоляцией у производителя Востокэнерготранс. ![]() ![]() ![]()
|
|||
|
Сообщить о нарушении
Поставка:
Товар в наличии
Поставщик:
Востокэнерготранс Россия, Татарстан, Казань
Дата публикации:
15 окт. 2025 - 11:05
Просмотров:
в Феврале [0], всего [0] |
108838
Не нашли нужного предложения?
Оставьте заявку для всех участников торговой площадки.
24000 организации, Ваша контактная информация доступна только зарегистрированным пользователям.
Оставьте заявку для всех участников торговой площадки.
24000 организации, Ваша контактная информация доступна только зарегистрированным пользователям.
Сухой трансформатор ТСЛ/630/10/0.4/D/Yн-11/IP00/Al с литой изоляциейТехнические характеристики трансформатора сухого типа 630 квА с литой изоляцией:



